UPC-034
Calpe Ref. UPC-034Si vous souhaitez plus d'informations sur ce bien, remplissez le formulaire suivant et nous vous contacterons dans les plus brefs délais. Merci

Description
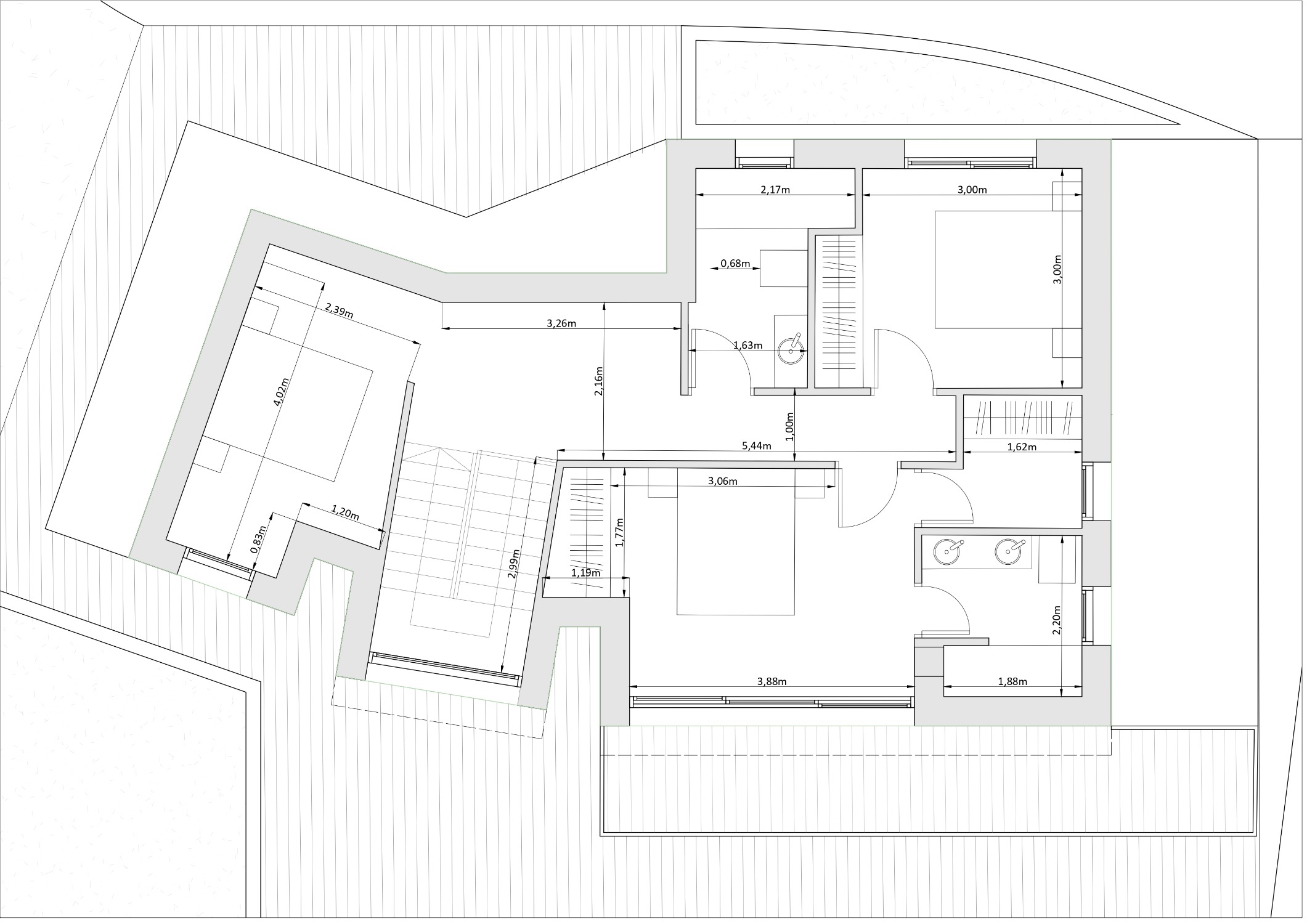
Élégance, confort et nature s’unissent dans cette villa moderne à Buena Vista, Calpe. Sur un terrain de 800 m², ses volumes réinterprètent l’architecture méditerranéenne, avec des espaces lumineux et ouverts reliés à l’extérieur.
Profitez d’une grande terrasse avec zones couvertes et découvertes, d’une piscine orientée au sud et de vues sur le Peñón de Ifach. Répartie sur deux étages avec pièces ouvertes, suites privées et finitions haut de gamme comme chauffage au sol, climatisation et double vitrage.
Un lieu idéal, à deux pas du Parc de la Vallesa, des restaurants, du club de tennis et des services.
Caractéristiques
- Terrain: 823m2
- Housation: 211m2
- Population: Calpe
- Pool privé
Équipement
- Climatisation
- Chauffage
- Appareils ménagers
- Jardin
- Blanchisserie
- Parking
- Piscine
- Terrasse
Carte de localisation
La position sur la carte est approximative.