UPC-026
Calpe Ref. UPC-026Si vous souhaitez plus d'informations sur ce bien, remplissez le formulaire suivant et nous vous contacterons dans les plus brefs délais. Merci

Description
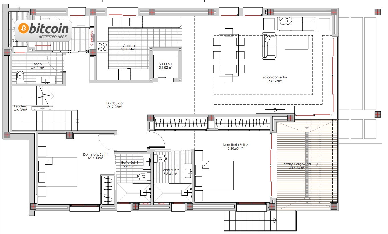
Villa située dans le quartier Gran Sol, offrant des vues imprenables de Calpe à Moraira, y compris le célèbre Peñón de Ifach, symbole de la Costa Blanca.
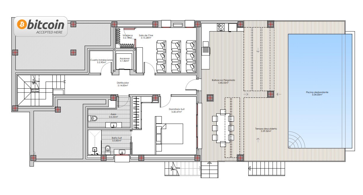
Répartie sur trois niveaux reliés par ascenseur, elle allie design moderne et confort. La propriété dispose de grands salons et terrasses avec vue sur la mer, d’une cuisine entièrement équipée, de plusieurs suites avec salles de bains privées et d’espaces de loisirs tels qu’une salle de cinéma et cave à vin.
À l’extérieur, vous profiterez d’une piscine privée, d’une terrasse ensoleillée et d’un espace barbecue, parfaits pour savourer le style de vie méditerranéen. À seulement quelques minutes des plages, restaurants, port de plaisance et services.
Une villa conçue pour profiter du luxe, de la tranquillité et de la beauté méditerranéenne chaque jour.
Caractéristiques
- Terrain: 823m2
- Logement: 418m2
- Population: Calpe
- Pool privé
Équipement
- Climatisation
- Ascenseur
- Barbecue
- Chauffage
- Appareils ménagers
- Garage
- Jardin
- Blanchisserie
- Parking
- Piscine
- Terrasse
Carte de localisation
La position sur la carte est approximative.