Загородная вилла в Ками-Диего-Кальдо, Теулада-Морайра
MorairaЕсли вам нужна дополнительная информация об этом объекте недвижимости, заполните следующую форму, и мы свяжемся с вами как можно скорее. Спасибо

Описание
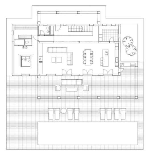
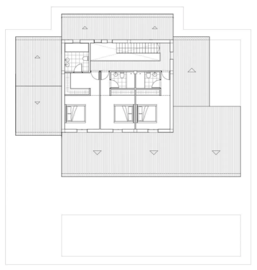
Эта вилла в средиземноморском стиле имеет 3 этажа, соединенных внутренней лестницей. В квартире просторная гостиная-столовая-кухня открытой планировки. Кухня полностью оборудована и имеет остров для приготовления пищи. В доме 4 ванные комнаты и гостевой туалет. В доме также есть подвал и прачечная.
Во всем доме есть кондиционирование воздуха (проводное) и центральное отопление. Автоматические въездные ворота с отдельным пешеходным входом и домофоном. На одном уровне с главным домом находится бассейн и большая терраса.
Характеристики
- Участок: 1353 m2
- Жилая площадь: 460 m2
- Расположение: Морайра
- Бассейн: частный
оборудование
Карта местонахождения
Местоположение на карте приблизительное.